An Urban Living Listing: bright end-unit Magnolia retreat
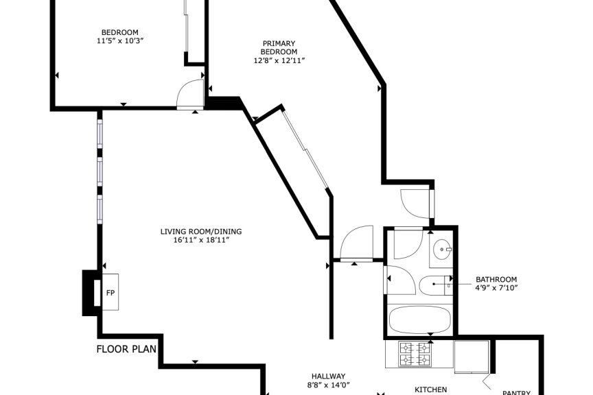
Perfectly poised up off the street, 3045 20th Ave W #102 is a spacious end-unit condo is flooded with natural light! Two large bedrooms, five closets, and secure garage parking give you the space and storage you need. Cooking is a delight in the kitchen, which boasts stainless steel appliances, an undermount sink, a dishwasher, granite countertops, and plenty of cabinet space. Enjoy the comforts of home with an in-unit washer/dryer and wood-burning fireplace. Pet-friendly building that allows rentals.
Priced at $399,000
Get in touch with Matt at [email protected] or 206-338-3535 (text works!) if you’d like to see it in person.
