The Emerald Releases Penthouses
The Emerald, a 265-unit condo building towering above Pike Place Market that started sales at the beginning of the year just released more information on their 22 penthouses:
Positioned on the 34th through 38th floors, these limited edition homes offer one of the most exceptional living experiences in Seattle. The impeccable residences feature our most spacious floor plans with elevated finishes, expansive kitchens, lavish bathrooms and soaring ceiling heights with floor-to-ceiling windows and panoramic views of the city and Sound.
The 38th floor is reserved for just two Premier Level Penthouses, the largest and most exclusive homes in our entire Penthouse Collection.
Some of the upgrades include a Meile appliance package, natural stone countertops and tile, mudset shower floor, heated bathroom floors and 10′ ceilings.
Floors 34 to 37 have 5 homes each, while the top floor, the 38th, has just two, their marquee penthouses.
#3801, “The Trillion” is 3,587 square feet with four bedrooms and 4.5 bathrooms and is priced at $10.9m.



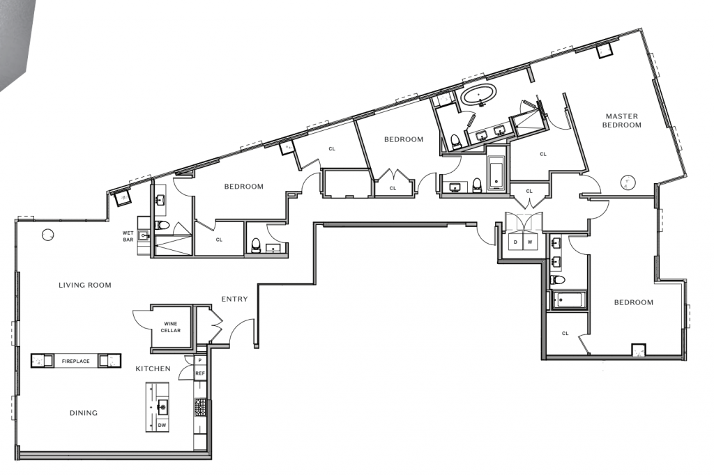
#3802, “the Marquise” is 3,948 square feet with four bedrooms and 4.5 bathrooms and is priced at $10.5m:


Back when they started sales, we helped one of our clients buy a north-west penthouses and then in July was able to do a hardhat tour of the penthouses and the views really are spectacular!
